《英德市沙口镇中心镇区控制性详细规划》SK03-14-01地块(生活垃圾中转站地块)局部调整草案公示
《<英德市沙口镇中心镇区控制性详细规划>SK03-14-01地块(生活垃圾中转站地块)局部调整》草案已编制完成,根据《中华人民共和国城乡规划法》第二十六条、《广东省城乡规划条例》第二十四条及《关于加强和改进控制性详细规划管理若干指导意见(暂行)》规定,现将成果予以公示,广泛征求公众的意见和建议。具体事项如下:
一、项目名称
《<英德市沙口镇中心镇区控制性详细规划>SK03-14-01地块(生活垃圾中转站地块)局部调整》
二、公示时间
从2025年4月11日至2025年5月11日,共30天。
三、公示媒介
英德市人民政府网站:http://www.yingde.gov.cn/
四、规划内容及主要图纸
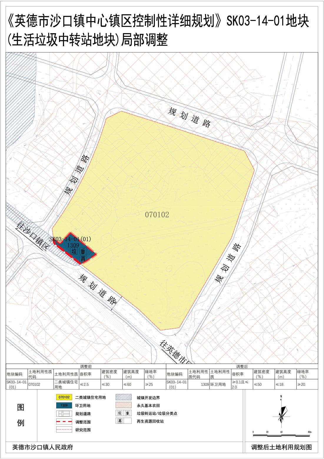
(一)规划范围
本次规划范围位于英德市沙口镇镇区中部,Y421乡道西侧,调整范围总用地面积为0.12公顷,研究范围用地面积为5.42公顷。

(二)调整前土地利用规划
调整前用地总面积为0.12公顷,均为二类城镇住宅用地。
调整前土地利用规划

调整前土地利用规划图
(三)调整后土地利用规划
调整后用地总面积为0.12公顷,调整后用地性质为环卫用地。
调整后土地利用规划
土地利用用地调整对比表

调整后土地利用规划图
(四)调整控制指标前后对比

调整后地块编码规划图
五、公示意见反馈方式
公示期间,广大市民可通过以下方式参与并反馈意见:
公示受理部门:英德市自然资源局
联系电话:0763-2551198
通信地址:广东省清远市英德市沙口镇人民政府[来信请在信封注明:《<英德市沙口镇中心镇区控制性详细规划>SK03-14-01地块(生活垃圾中转站地块)局部调整》草案公示反馈意见]。
邮政编码:513052
传真号码:2551198
公示地点:英德市人民政府网站:http://www.yingde.gov.cn/
欢迎社会各界对本规划方案提出宝贵意见,并请留下相应的联系方式。感谢您对《<英德市沙口镇中心镇区控制性详细规划>SK03-14-01地块(生活垃圾中转站地块)局部调整》工作的参与和支持!
二〇二五年四月十一日