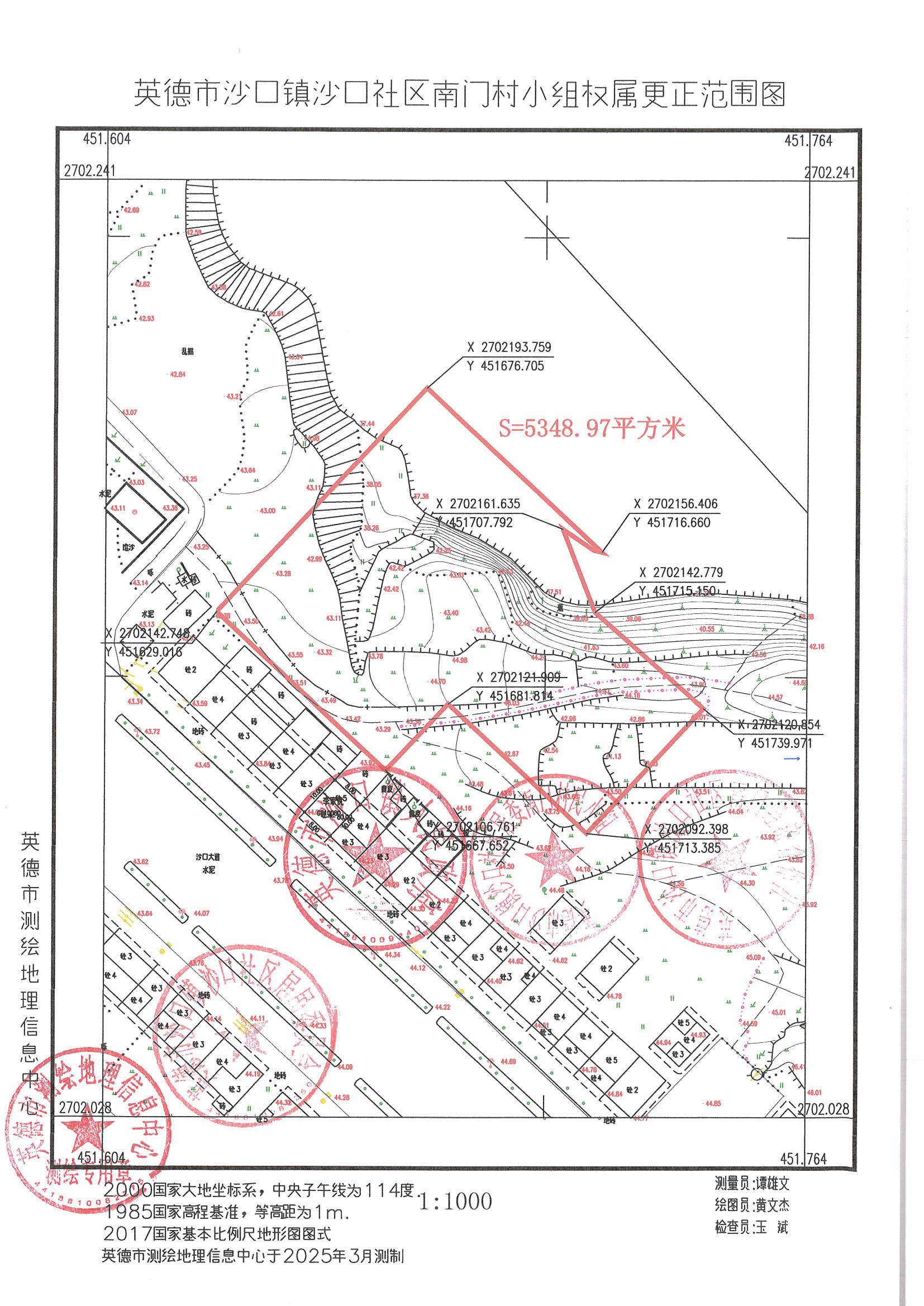
英德市沙口镇沙口社区南门村民小组向我局申请更正登记位于英德市沙口镇沙口社区的一宗农民集体所有权土地(具体位置见附图),宗地面积5348.97平方米。上述土地在农村集体土地所有权调查确权时,误将其指界为国有土地,经相关权利人实地指认,上述土地实际属于英德市沙口镇沙口社区南门村民小组所有。现对拟申请权属更正情况进行公告,如对公告有异议者,请在公告后15个工作日内向市自然资源局提出书面意见,若无异议,我局将予以更正登记。
英德市自然资源局
2025年4月14日

英德市沙口镇沙口社区南门村民小组向我局申请更正登记位于英德市沙口镇沙口社区的一宗农民集体所有权土地(具体位置见附图),宗地面积5348.97平方米。上述土地在农村集体土地所有权调查确权时,误将其指界为国有土地,经相关权利人实地指认,上述土地实际属于英德市沙口镇沙口社区南门村民小组所有。现对拟申请权属更正情况进行公告,如对公告有异议者,请在公告后15个工作日内向市自然资源局提出书面意见,若无异议,我局将予以更正登记。
英德市自然资源局
2025年4月14日
