《<清远英德高新技术产业开发区(清华园片区&青塘片区)控制性详细规划>QYG06单元26街坊局部调整》草案已编制完成,根据《中华人民共和国城乡规划法》第二十六条、《广东省城乡规划条例》第二十四条及《关于加强和改进控制性详细规划管理若干指导意见(暂行)》规定,现将成果予以公示,广泛征求公众的意见和建议。具体事项如下:
一、项目名称
《<清远英德高新技术产业开发区(清华园片区&青塘片区)控制性详细规划>QYG06单元26街坊局部调整》
二、公示时间
从2026年4月10日至2026年5月10日,共30天。
三、公示媒介
英德市人民政府网站:http://www.yingde.gov.cn/
四、规划内容及主要图纸
(一)规划范围
以《现行控规》市政道路围合区域形成本次《局部调整》规划范围。规划范围位于英德市高新区化工园区北侧,北至规划20米道路,南至翰和工业,东至石背山,西临京港澳高速,规划范围总用地面积为17.81公顷。
调整范围:17.81公顷

(二)调整前土地利用规划
调整前用地总面积为17.81公顷,其中三类工业用地15.62公顷,城镇村道路用地2.19公顷。
调整前土地利用规划
序号 |
调整前 |
类别名称 |
用地代码 |
面积(公顷) |
一级类 |
二、三级类 |
建设用地 |
17.81 |
1 |
工矿用地 |
三类工业用地 |
100103 |
15.62 |
2 |
交通运输用地 |
城镇村道路用地 |
1207 |
2.19 |
总用地面积 |
17.81 |

调整前土地利用规划图
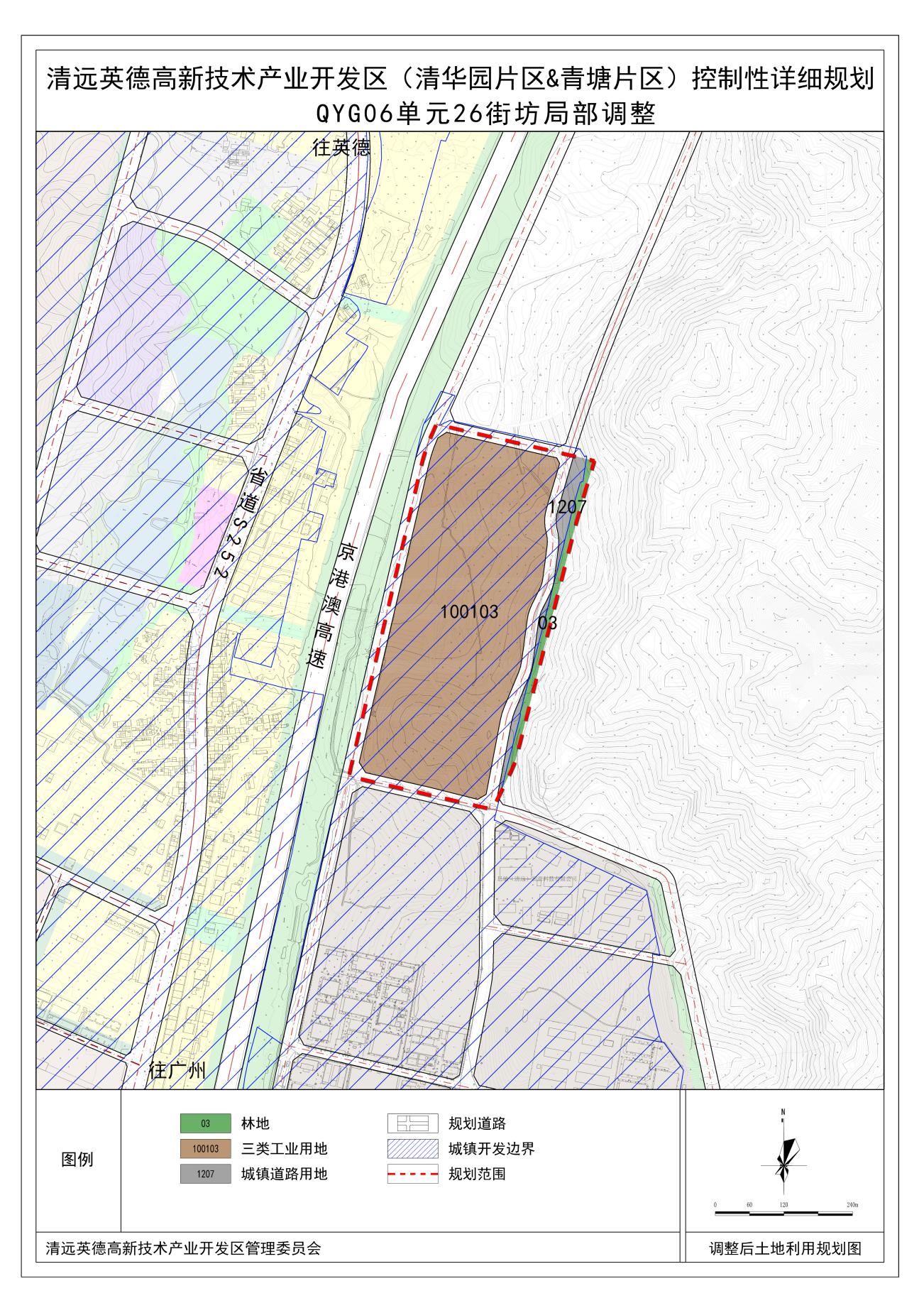
(三)调整后土地利用规划
规划地块总用地面积为17.81公顷。其中三类工业用地13.94公顷;交通运输用地3.21公顷;农用0.66公顷;各类用地指标详见下表:
调整后土地利用规划汇总表
用地代码 |
用地名称 |
用地面积(公顷) |
占总用地比例(%) |
大类 |
中类 |
小类 |
03 |
|
03 |
林业 |
0.66 |
3.71% |
10 |
工矿用地 |
|
13.94 |
78.27% |
1001 |
100103 |
三类工业用地用地 |
13.94 |
|
12 |
交通运输用地 |
|
3.21 |
18.02% |
1207 |
|
城镇村道路用地 |
3.21 |
|
总计 |
17.81 |
100.00% |
土地利用用地调整对比表
序号 |
调整前 |
调整后 |
调整前后对比(公顷) |
类别名称 |
用地代码 |
面积(公顷) |
类别名称 |
用地代码 |
面积(公顷) |
|
一级类 |
二、三级类 |
一级类 |
二、三级类 |
|
农用地 |
0 |
|
0.66 |
+0.66 |
建设用地 |
17.81 |
建设用地 |
17.81 |
0 |
1 |
工矿用地 |
三类工业用地 |
100103 |
13.94 |
工矿用地 |
三类工业用地 |
100103 |
15.62 |
-1.68 |
2 |
交通运输用地 |
城镇村道路用地 |
1207 |
2.19 |
交通运输用地 |
城镇村道路用地 |
1207 |
3.21 |
+1.02 |
总用地面积 |
17.81 |
总用地面积 |
17.81 |
0 |

调整后土地利用规划图
四、公示意见反馈方式
公示期间,广大市民可通过以下方式参与并反馈意见:
公示受理部门:清远英德高新技术产业开发区管理委员会
联系电话:0763-2282957
通信地址:清远英德高新技术产业开发区管理委员会[来信请在信封注明:《<清远英德高新技术产业开发区(清华园片区&青塘片区)控制性详细规划>QYG06单元26街坊局部调整》草案公示反馈意见]。
邮政编码:513000
邮箱:ydgtgb@163.com邮件注明:《<清远英德高新技术产业开发区(清华园片区&青塘片区)控制性详细规划>QYG06单元26街坊局部调整》草案公示反馈意见]
公示地点:英德市人民政府网站:http://www.yingde.gov.cn/
欢迎社会各界对本规划方案提出宝贵意见,并请留下相应的联系方式。感谢您对《<清远英德高新技术产业开发区(清华园片区&青塘片区)控制性详细规划>QYG06单元26街坊局部调整》工作的参与和支持!
清远英德高新技术产业开发区管理委员会
2026年4月10日