《英德市东华镇中心区控制性详细规划》DH01-11-(05、06)地块局部调整草案公示稿
《<英德市东华镇中心区控制性详细规划>DH01-11-(05、06)地块局部调整》草案已编制完成,根据《中华人民共和国城乡规划法》、《广东省城乡规划条例》,现将《<英德市东华镇中心区控制性详细规划>DH01-11-(05、06)地块局部调整》草案予以公示,广泛征求公众的意见和建议。具体事项如下:
一、项目名称
《<英德市东华镇中心区控制性详细规划>DH01-11-(05、06)地块局部调整》
二、公示时间
2025年11月18日--2025年12月18日(30天)。
三、公示媒介
政府网站:http://www.yingde.gov.cn/。
四、调整内容及主要图纸
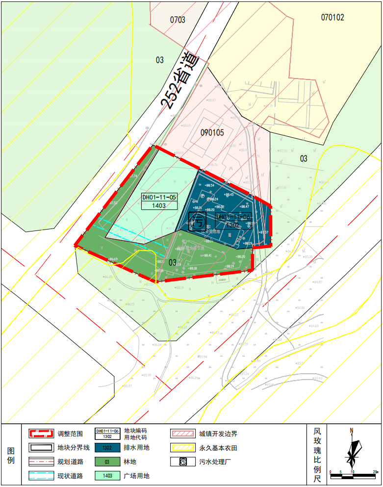
(一)调整范围
衔接《英德市东华镇中心区控制性详细规划》(以下简称《现行控规》),确定调整范围为《现行控规》DH01-11-(05、06)地块及其周边非建设用地,总面积为0.3349公顷。
本次调整范围北侧为加油站,东侧及南侧为耕地,西侧为现状道路252省道。

调整范围图

与《英德市国土空间总体规划(2021-2035年)》规划用地用海衔接图
(二)调整前后土地利用规划
调整范围总用地面积0.3349公顷,用地调整前,林地0.1396公顷,排水用地0.0991公顷,广场用地0.0962公顷。
根据污水厂已批复建设用地范围以及英德市国土空间总体规划用地用海情况,调整用地边界及用地性质。用地调整后,耕地0.0143公顷,林地0.0338公顷,排水用地0.1552公顷,广场用地0.0854公顷,公路用地0.0462公顷。各类用地规模详见下表:
序号 |
用地代码 |
用地性质 |
调整前 |
调整后 |
调整后较调整前变化(公顷) |
面积
(公顷) |
占比(%) |
面积
(公顷) |
占比(%) |
1 |
01 |
耕地 |
0.0000 |
0.00 |
0.0143 |
4.27 |
0.0143 |
2 |
03 |
林地 |
0.1396 |
41.68 |
0.0338 |
10.09 |
-0.1058 |
3 |
1202 |
公路用地 |
0.0000 |
0.00 |
0.0462 |
13.80 |
0.0462 |
3 |
1302 |
排水用地 |
0.0991 |
29.59 |
0.1552 |
46.34 |
0.0561 |
4 |
1403 |
广场用地 |
0.0962 |
28.73 |
0.0854 |
25.50 |
-0.0108 |
合计 |
0.3349 |
100 |
0.3349 |
100 |
0 |

调整前土地利用规划图

调整后土地利用规划图
(三)调整前后控制指标
根据实际开发需求与现状情况,调整地块控制指标。
指标调整对比表
调整前 |
调整后 |
地块编码 |
用地性质 |
用地面积(㎡) |
容积率 |
建筑密度(%) |
建筑高度(米) |
绿地率(%) |
用地代码 |
用地性质 |
用地面积(㎡) |
容积率 |
建筑密度(%) |
建筑高度(米) |
绿地率(%) |
调整情况 |
DH01-11-05 |
广场用地 |
0.0962 |
- |
- |
- |
- |
DH01-11-05-01 |
广场用地 |
0.0854 |
- |
- |
- |
- |
调整用地性质 |
DH01-11-05-02 |
公路用地 |
0.0462 |
- |
- |
- |
- |
DH01-11-06 |
排水用地 |
0.0991 |
≤1.2 |
≤40 |
≤24 |
≥20 |
DH01-11-06 |
排水用地 |
0.1552 |
0.1≤far≤1.0 |
≤40 |
≤24 |
≥20 |
调整容积率 |
五、公示意见反馈方式
(一)电话:0763-2630821
(二)发电子邮件至:yddhzf@163.com(邮件请注明:《<英德市东华镇中心区控制性详细规划>DH01-11-(05、06)地块局部调整》草案公示反馈意见)
(三)寄件地址:英德市东华镇人民政府,邮编:513058(来信请在信封注明:《<英德市东华镇中心区控制性详细规划>DH01-11-(05、06)地块局部调整》草案公示反馈意见)
欢迎社会各界对本局部调整草案提出宝贵意见,并请留下相应的联系方式。感谢您对英德市东华镇规划工作的参与和支持!
英德市东华镇人民政府
2025年11月18日